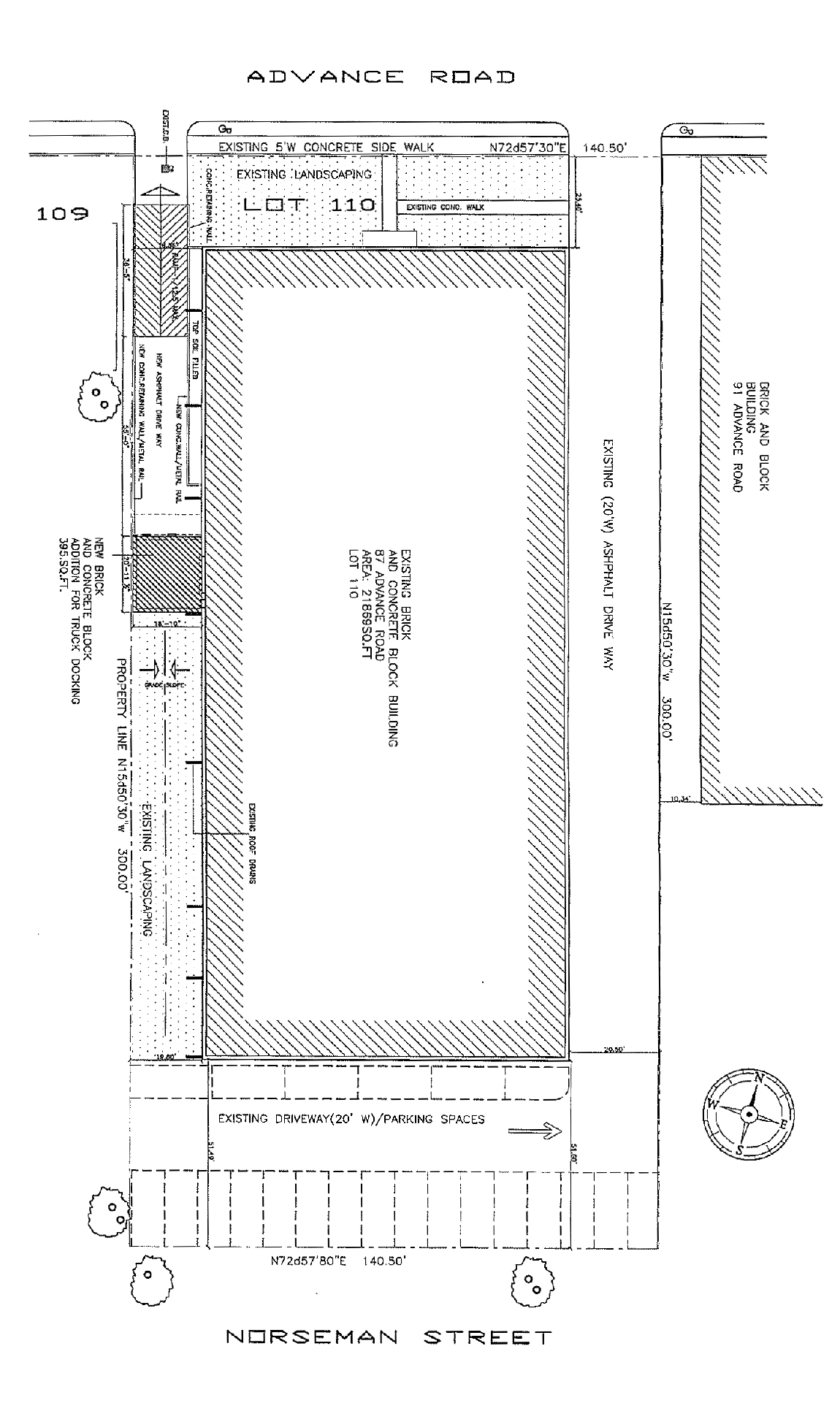
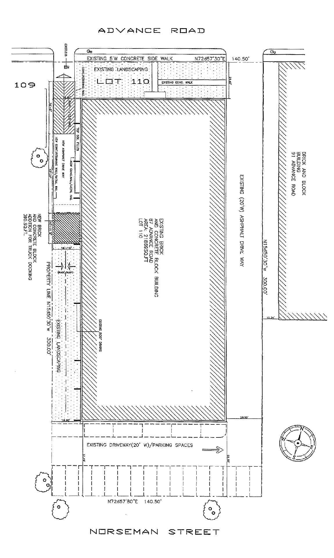
87 Advance Road
Just listed, but won’t last long! Over 21,000 square feet of industrial space situated in Etobicoke. The possibilities with this Zoning/E1 lot of 140′ x 300′ are a dream for any business owner looking for the right space. Surrounded by endless amenities. Easily accessible. Immediate access to HWY 427 & QEW.
Address
87 Advance Road, Etobicoke, ON, Canada Open on Google Maps
Industrial
21,869 sq ft
High ceilings
Ample customer parking
Close to all amenities
Multi-bay garage
Large sidewalk storefront
John Cinelli
john@cpmrealty.ca
416.255.0707 Ext. 226
Justin Basso
Justin@cpmrealty.ca
416.255.0707 Ext. 235






